




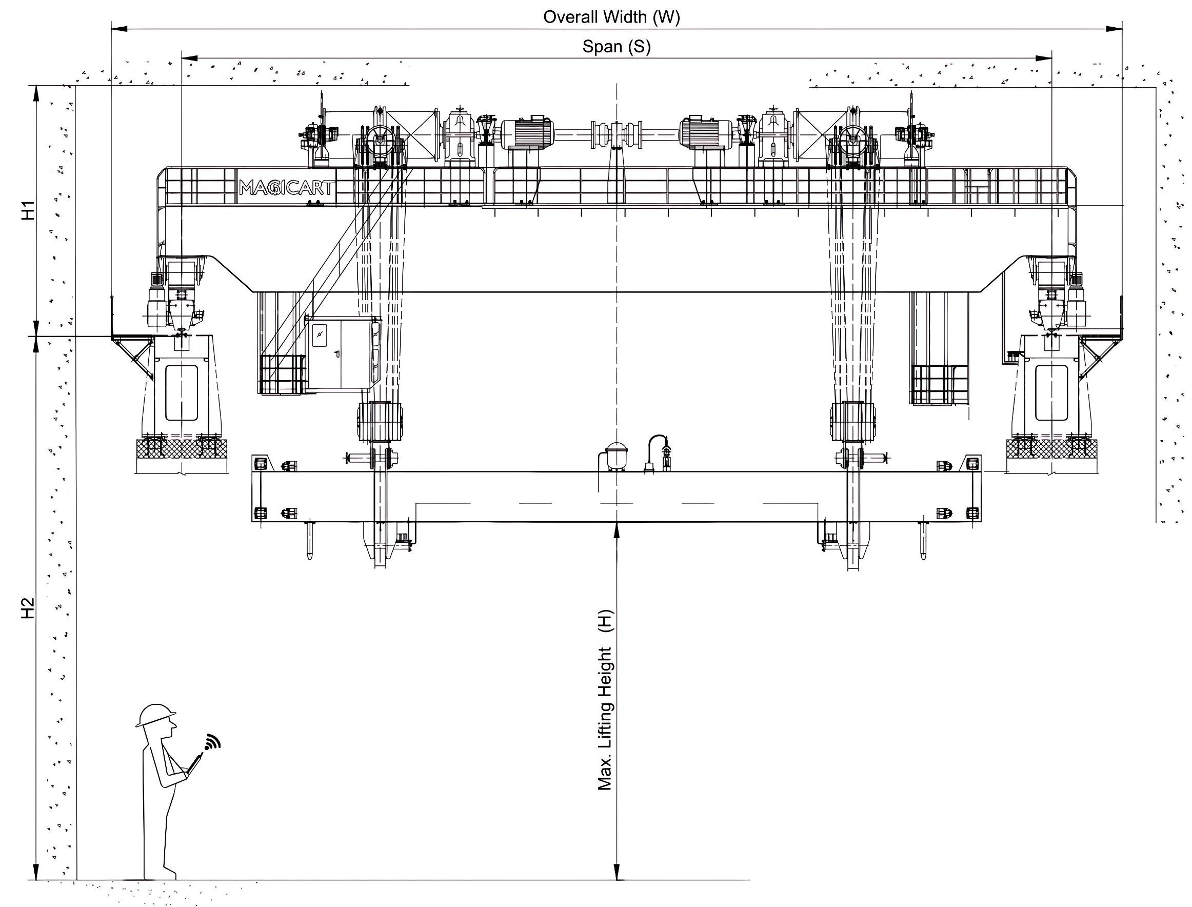
Load Capacity: 40~560t, customized
Span: 13~32m, customized
Lifting Height: 16~35m, customized
Class: A1, A2, A3
Mainly used for lifting, opening, and closing gates
At large hydropower stations and water conservancy projects

Support customization

Made of high-quality steel, reliable quality

Low power consumption and operating cost

| Load Capacity (ton) |
Span /Rail Gauge (m) |
Max. Lifting height (m) |
Class |
| 50 | 10~32 | 3~40 | A1, A2, A3 |
| 80 | 10~32 | 3~40 | A1, A2, A3 |
| 100 | 10~32 | 3~40 | A1, A2, A3 |
| 150 | 10~32 | 3~40 | A1, A2, A3 |
| 200 | 10~32 | 3~40 | A1, A2, A3 |
| 275 | 10~32 | 3~40 | A1, A2, A3 |
| 300 | 10~32 | 3~40 | A1, A2, A3 |
| 350 | 10~32 | 3~40 | A1, A2, A3 |
| 400 | 10~32 | 3~40 | A1, A2, A3 |
| 450 | 10~32 | 3~40 | A1, A2, A3 |
| 500 | 10~32 | 3~40 | A1, A2, A3 |
| 560 | 10~32 | 3~40 | A1, A2, A3 |
| Customizable | Customizable | Customizable | Customizable |

Technical Support | Customized Design | Project Budget | Offer for Bidding | Contracting | Fast Services...
Call +86 373 5853707 +86 17337369287to enjoy a good experience here!
Our Sales Engineer will contact with you within 12 hours!
Copyright © 2025 Xinxiang MAGICART Cranes CO., LTD.